Tagungen, Kongresse & Großveranstaltungen im Maritim Hotel Frankfurt
Das Maritim Hotel Frankfurt bietet Ihnen weit mehr als klassische Veranstaltungsräume.
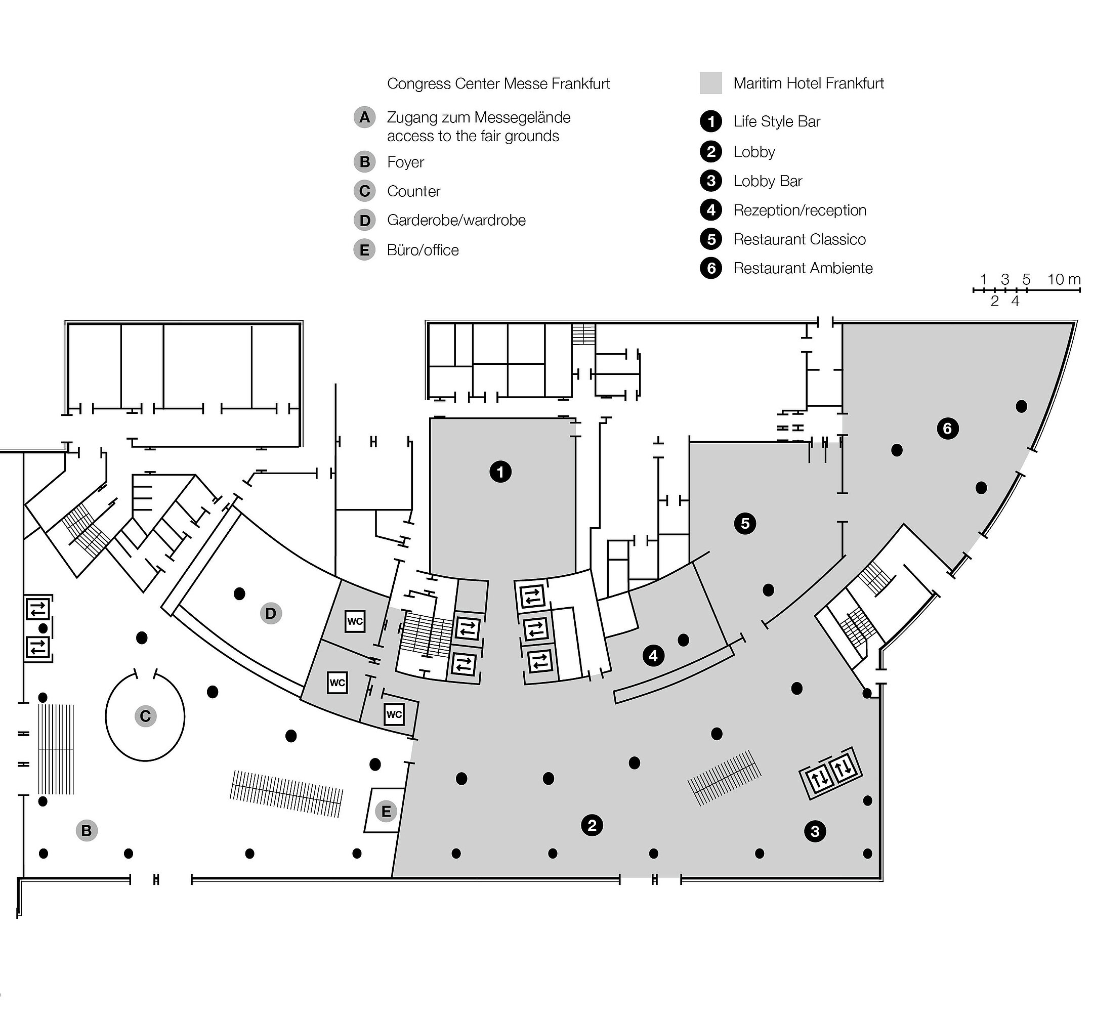
Neben den hoteleigenen Tagungsflächen profitieren Sie von einer direkten Verbindung zur Messe Frankfurt und dem umfangreichen Congress- & Eventangebot des Congress Center Messe Frankfurt (CMF).
Hotel, Veranstaltungsflächen und Organisation: alles aus einer Hand, zentral koordiniert durch Maritim.
Veranstaltungsräume im Maritim Hotel Frankfurt
Unsere Tagungsräume im Hotel
Technik in den Maritim Räumen
- Alle Veranstaltungsräume haben Tageslicht und sind automatisch verdunkelbar
- In jeder Raumteilung freie analoge und digitale Telefonanschlüsse
- In jeder Raumteilung freie 100 MHZ Anschlüsse
- In jeder Raumteilung EAD Verkabelung (Koax RG 58)
- Saal Maritim III, 10 Abhängepunkte à 75 kg, festinstallierte Bühne mit 28 qm, (7 x 4 m) und 60 cm Bühnenhöhe, Höhe bis Bühnenvorhang 3,35 m, von der Bühnenhöhe bis zur Bühnendecke 2,5 m
- Eine Datenverbindung zu den Räumlichkeiten des Congress Center Messe
Das Haus bietet Ihnen begleitend zu Ihrer Veranstaltung alle gängigen Tagungsausstattungen sowie Audio- und Videotechnik an.
Alle Veranstaltungsräume sind mit fest installierten Leinwänden ausgestattet. Spezielle Wünsche, wie zum Beispiel Simultanübersetzungssysteme, werden problemlos erfüllt.
Congress- & Eventflächen der Messe Frankfurt
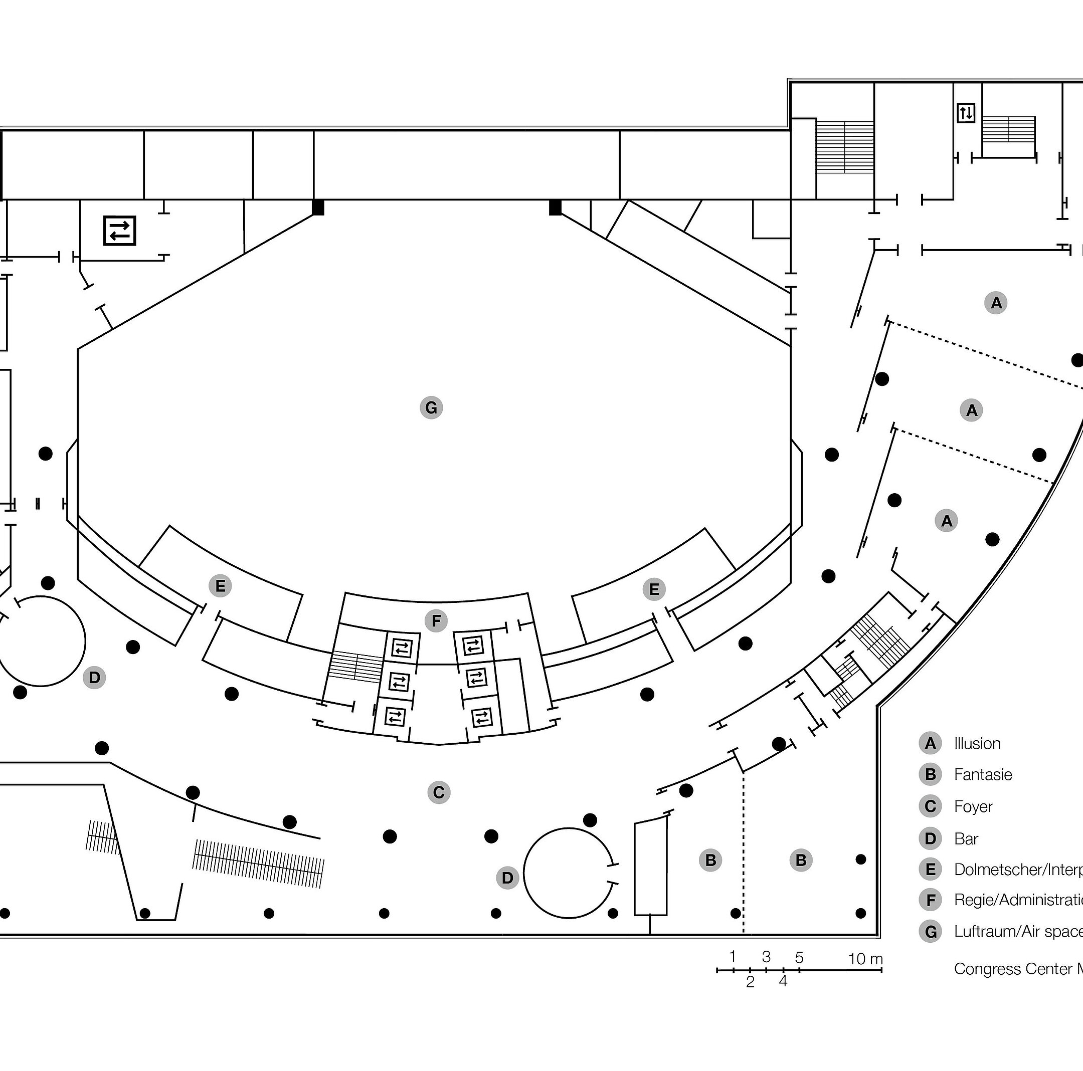
Tagungstechnik im Saal Harmonie im Congress Center Messe
Saalboden
- ebene Fläche, arretiert, Traglast 1 t/qm, Parkett
Bühne
- Hinterbühne 137,70 qm, Vorderbühne 163,5 qm, bestehend aus 13 höhenverstellbaren Einzelelementen
Dolmetscheranlage
- 2 Anlagen für je 3 Sprachen
Beleuchtung
- 53 Lichtgräben mit Leuchtstofflampen in den Farben Blau, Weiß und Gelb
- 300 Downlights à 250 W, Halospot
- Das komplette Saallicht ist variabel dimmbar und in Abhängigkeit von der Raumteilung pro Raumsegment individuell aufschaltbar
- 10 fest installierte Bühnenscheinwerfer
Deckenvorrichtung
- 3 festinstallierte Deckenlifte für Großprojektion (max. 100 kg)
- 31 Abhängepunkte im Saal à 2,5 t
- 6 Kettenzüge im Szenenbereich à 1 t
- 6 mobile Kettenzüge im Bühnenbereich à 1,6 t
- 8 mobile Hängepunkte im Bühnenbereich à 2,5 t
- Raumhöhe im Saal zwischen 6,90 und 10,10 m
Beschallungsanlage
- 5 Lautsprechercluster für Frontbeschallung (getrennt regelbar), je Cluster bestückt mit 5× d&b-Qi-1-Lautsprecher und d&b-D-12-Verstärker
- 2 Subwoofer, 2× d&b Q-Sub
- 5 Bühnenlautsprecher für Nahfeld, 5× d&b E3
- 6 Bühnenmonitore, 6× d&b MAX 12
- 15 Gruppen Deckenlautsprecher (einzeln ansteuerbar)
- 4 Lautsprechertürme, bestückt mit KS CPA 2, CPA W (aktiv)
- 2 Lautsprechertürme, bestückt mit KS TX 1, TW (passiv)
- Mikrofone: Shure, Neumann, Schoeps
- Mikroport-Anlage: Shure UR4 mit Handsender UR2 (Kapsel SM87A) und Taschensender UR1 (Lavaliermikrofon WL185)
- Diskussions-, Konferenz- und Dolmetschersysteme: BOSCH DCNNG & BOSCH INTERGRUS & Shure ConferenceONE
Grundrisse

Jetzt Veranstaltung anfragen
Ob Tagung im Hotel oder Großveranstaltung in Kooperation mit der Messe Frankfurt, wir entwickeln gemeinsam mit Ihnen das passende Veranstaltungskonzept.
Unser erfahrenes Team berät Sie persönlich und erstellt ein individuelles Angebot für Ihre Veranstaltung.
Dieses Angebot ist buchbar auf Anfrage und nach Verfügbarkeit.
Maritim Hotel Frankfurt
Theodor-Heuss-Allee 3
60486 Frankfurt/Main
Telefon: +49 (0) 69 7578-0
Fax: +49 (0) 69 7578-1000
Veranstaltungsservice: +49 (0) 69 7578-1189
meeting.fra@maritim.de











